Предыдущий проект

Галерея проектов

Следующий проект

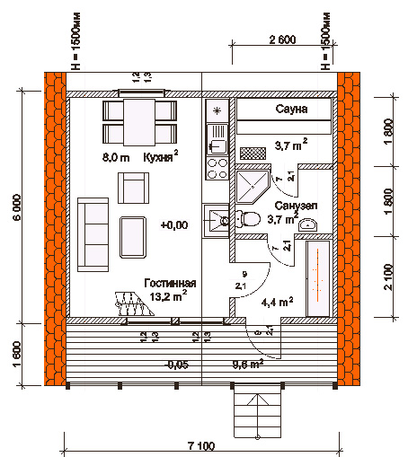
Проект DD - 245

Общая площадь дома = 55,0 кв.м.

Стены - деревянный каркас с утеплителем, отделка виниловым сайдингом.