Предыдущий проект

Галерея проектов

Следующий проект

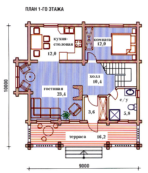
Проект DD - 265

Общая площадь дома = 137,3 кв.м.