Предыдущий проект

Галерея проектов

Следующий проект

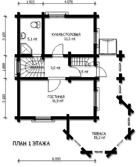
Проект DD - 636

Общая площадь дома = 102,6 кв.м.