Предыдущий проект

Галерея проектов

Следующий проект

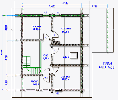
Проект DD - 645

Общая площадь дома = 136,0 кв.м.