Предыдущий проект

Галерея проектов

Следующий проект

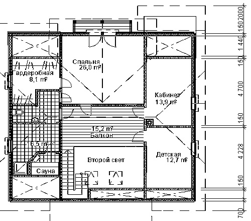
Проект DD - 254

Общая площадь дома = 210,0 кв.м.

Стены - деревянный каркас с утеплителем.