Галерея проектов

Следующий проект

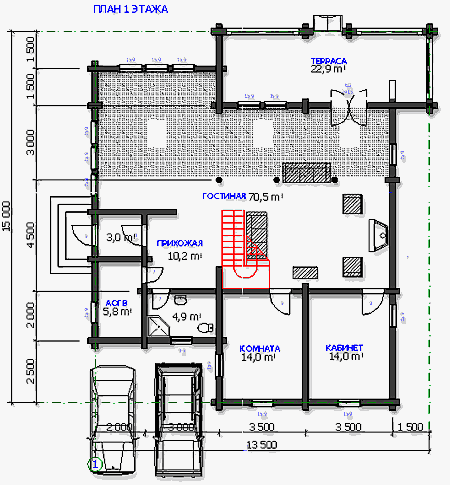
Проект DD - 582

Общая площадь дома = 250,6 кв.м.